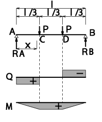
単純梁の計算公式(3等分集中荷重)

入力

計算条件を入力して、「計算」ボタンをタップしてください。

E・Iを省略した場合はδ・θの計算は行いません。

xを省略した場合は任意位置の曲げモーメントMxの計算は行いません。

スパン l(m)
集中荷重 P(kN)
ヤング係数 E(×105N/mm2)
断面二次モーメント I(×104mm4)
算定位置 x(m)
   

参考文献

 
[商品価格に関しましては、リンクが作成された時点と現時点で情報が変更されている場合がございます。]

新建築土木構造マニュアル [ 清田清司 ]
価格:4620円(税込、送料無料) (2021/4/27時点)